Объявления
0
 
Квартиры
/ 6951
реклама
Объявление N 4021647

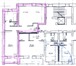
2-х комнатная кв.,58 кв.м., Василевского,д.74 в Челябинске

Вернуться к списку Предыдущее объявление Следующее объявление
1 990 000 руб.
Торг уместен
Проголосуйте за цену:
0
0
0
Голосовать
Предложить
Узнать о снижении цены
Продам индивидуальная
Продам Сделка
2-х комнатная Количество комнат
индивидуальная Планировка
58 Общая площадь, м2
40 Жилая площадь, м2
10 Площадь кухни, м2
5 Этаж
10 Этажей в доме
Ленинский Район, метро
Василевского Улица
74 Номер дома
1 990 000 руб. Цена

Просторная светлая квартира в новом не имеющем аналогов в данном районе кирпичном доме. Окна на обе стороны. Окна во двор - с видом на оз. Смолино.
Огорожена территория, большая детская и спортивная площадка. В шаговой доступности: детский сад № 29,429,315, средняя школа № 32, сквер Сигнал, городская больница № 11, различные социальные, торговые и финансовые организации. Прекрасная транспортная развязка.
В квартире предчистовая отделка: отштукатурены стены, выровнены полы, проведена вся электропроводка, установлены межкомнатные двери.
Быстрый выход на сделку: документы готовы, 1 взрослый собственник. Рассмотрим любые варианты расчёта. Помощь в кредитовании, оформлении ипотеки, законном использовании мат.капитала. Stepo.ru

Объявление в архиве
Бесплатно Можно без регистрации Просто, быстро, удобно
Дайте бесплатное объявление прямо сейчас!
И уже завтра вы сможете продать ваш товар
в любом из 1135 городов России.
Ваша прямая связь с 15 миллионами покупателей.
Без посредников.
Обратная связь и контакты
Политика конфиденциальности
© 2008-2026 Stepo.ru